Bar / Local en venta
- €320.000
Características principales
- Local comercial
- 2
- 1
- 96.0 m2
- 1951
Descripción
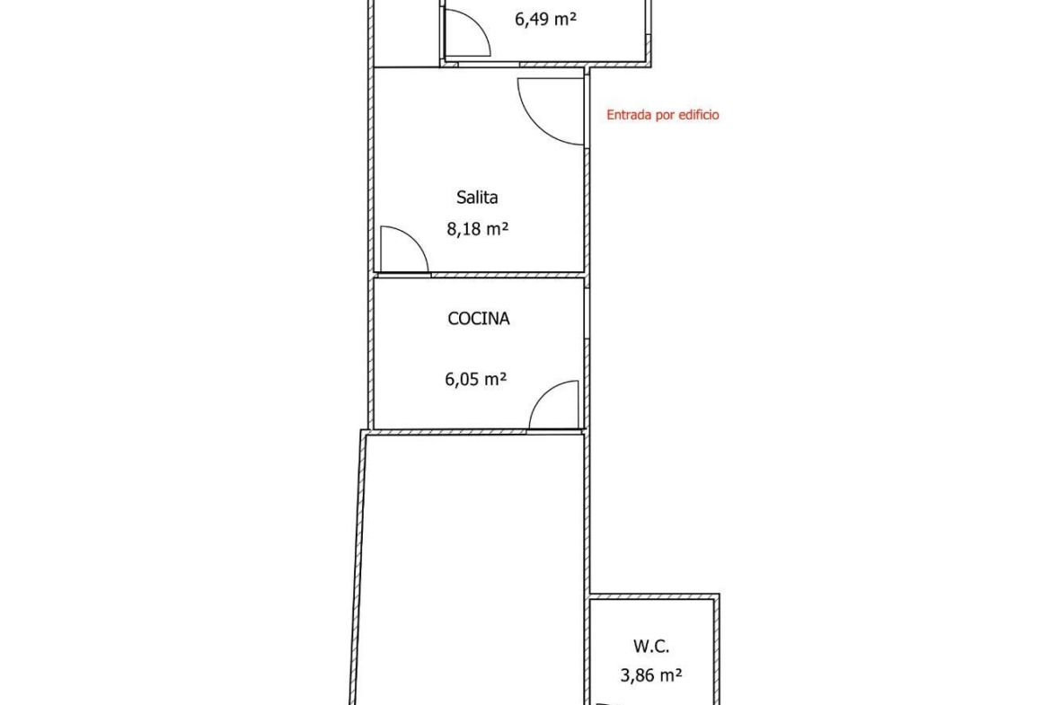
Ponemos a la venta un bar en el barrio de Comillas. El bar se puede continuar explotando, o bien convertir en vivienda. Se trata de un local cercano a Madrid Río (a 3 calles) y acceso a M30 en las inmediaciones.
Se trata de un bar en funcionamiento. Posee cocina con SALIDA de humos, por lo que las posibilidades son numerosas. Es mejor verlo.
Se encuentra ubicado en una zona con paso, cerca de una calle muy comercial y con todos los servicios necesarios en un radio muy pequeño. Pequeño comercio, grandes superficies, Centro de Salud, colegios, hospitales, etc…
Para más información no duden en contactar con nosotros.
Dirección
Abrir en Google Maps-
Ciudad: Madrid
Detalles
Actualizado en abril 19, 2026 a 4:01 am-
ID Propiedad PR99559721
-
Precio €320.000
-
M2 Disponibles 96.0 m2
-
Área terrestre 96.0 m2
-
Dormitorios 2
-
Baño 1
-
Año de construcción 1951
-
Tipo de propiedad Local comercial
-
Estado de la propiedad Comprar











