Casa unifamiliar en el Sobradillo
- €323.000
Características principales
- Casa / Chalet
- 5
- 1
- 433.0 m2
- 1965
Descripción
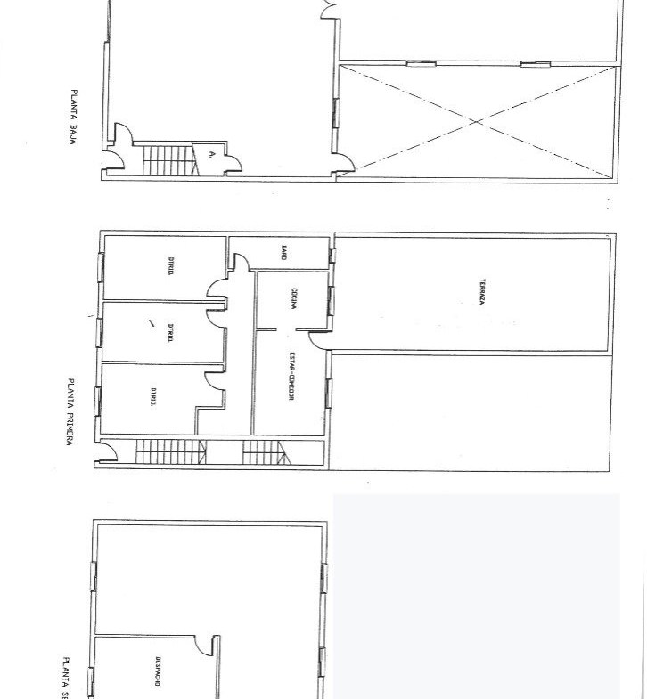
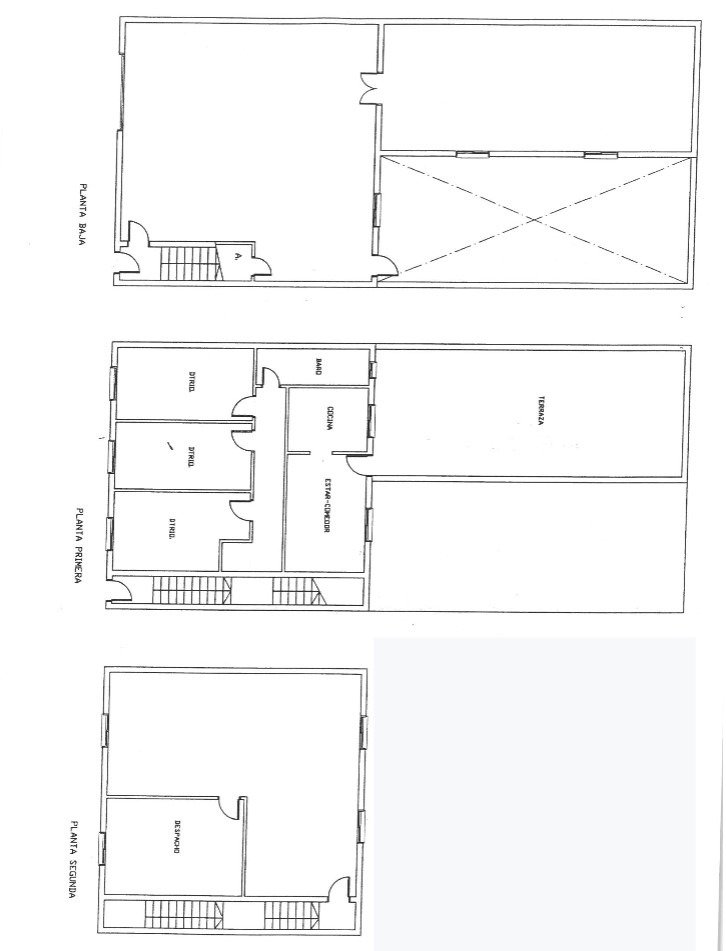
Se vende casa unifamiliar independiente de tres plantas con excelentes condiciones, muy luminosa y fresca, todas las ventanas protegidas, y el sistema hidráulico y eléctrico en perfecto estado.
La planta baja de 196,19 m² se encuentra distribuida en dos locales siendo el de la entrada un garaje, un aseo, patio interior y escalera que da acceso a la primera planta que tiene 143,31 m², y está compuesta por salón-comedor, tres dormitorios, amplia cocina, baño y una gran terraza techada, la cual cuenta con una cocina auxiliar, excelente sitio para compartir. con amigos y familia.
La segunda planta de 91,19 m² cuenta con dos habitaciones que se utilizan como oficina y otra como despacho, y área de terraza, con posibilidades de construir una vivienda.
Esta propiedad es ideal tanto para vivir como para destinarla a alquiler e incluso, para ambas cosas, dada su dimensión y distribución.
Para más información, consulte con nosotros y agendemos una visita.
La información contenida en este anuncio es orientativa y puede estar sujeta a errores, cambios de precio, omisiones o retirada del mercado sin previo aviso. El precio indicado no incluye impuestos ni gastos. Las superficies, información urbanística y demás características descritas son aproximadas y pueden no corresponderse con la realidad. Se recomienda verificar toda la información antes de tomar decisiones. Los precios pueden variar sin previo aviso.
Dirección
Abrir en Google Maps-
Ciudad: Santa Cruz de Tenerife
Detalles
Actualizado en octubre 8, 2025 a 3:07 am-
ID Propiedad RD000401
-
Precio €323.000
-
M2 Disponibles 433.0 m2
-
Área terrestre 629.19 m2
-
Dormitorios 5
-
Baño 1
-
Año de construcción 1965
-
Tipo de propiedad Casa / Chalet
-
Estado de la propiedad Comprar
Información de contacto
Ver listados
- MLS































