Propiedad en venta en Madrid, Madrid
- €550.000
Características principales
- Piso
- 3
- 1
- 98.0 m2
- 1930
Descripción
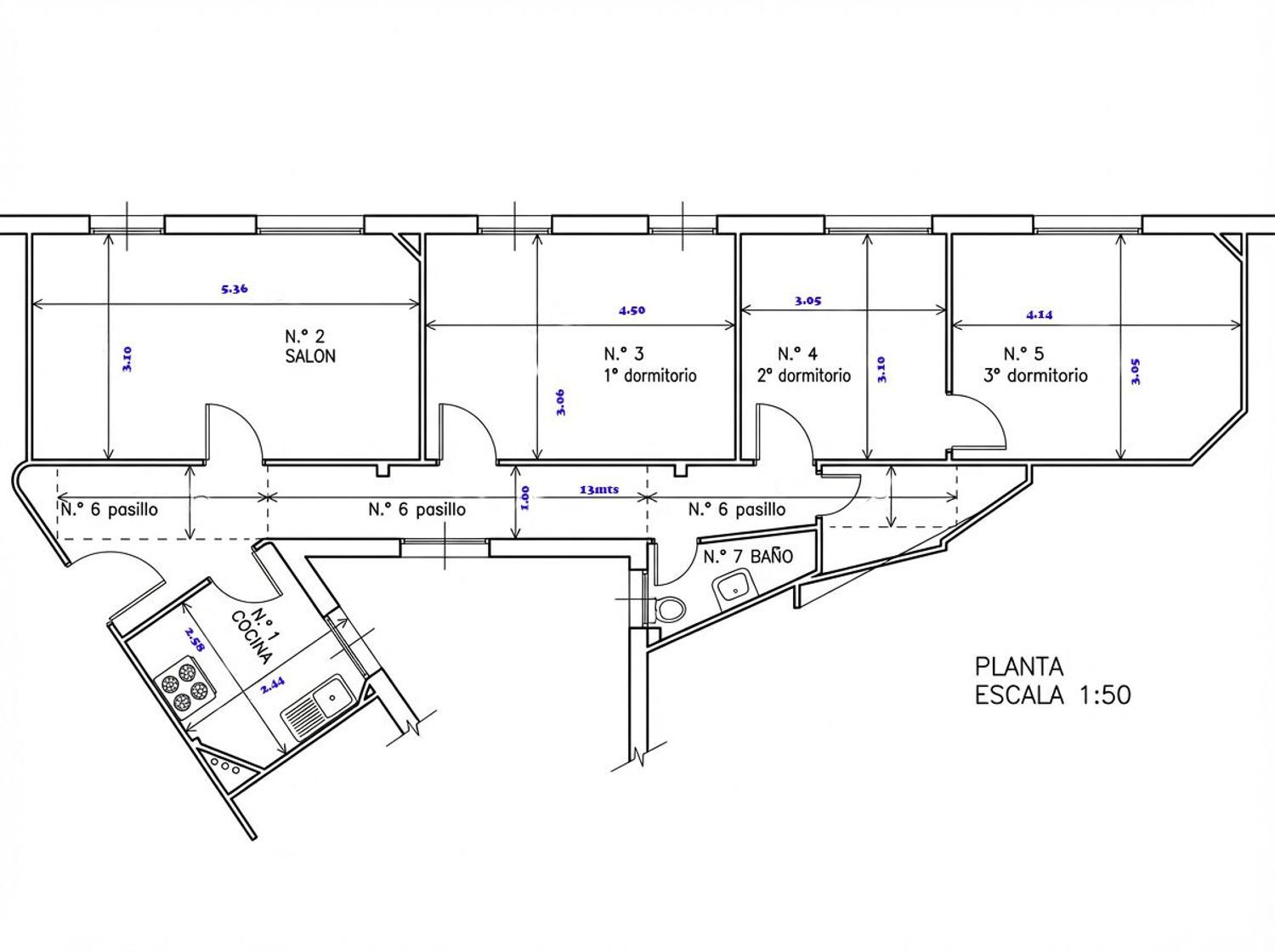
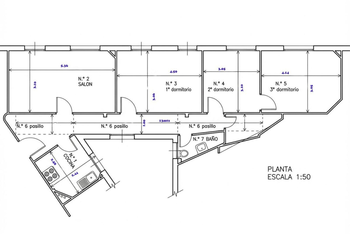
Atractivo piso exterior para reformar, con 98 m² y una distribución con múltiples posibilidades. Actualmente dispone de 3 habitaciones y 1 baño, con opción de redistribución tras reforma para 4 dormitorios y 2 baños.
Gracias a su condición de vivienda exterior, cuenta con una excelente luminosidad natural que aporta amplitud y claridad a todas las estancias. Situado en tercera planta con ascensor.
Dispone de suelo de parqué y tendedero en patio interior.
Ubicado en una zona muy consolidada y demandada de Madrid, rodeada de todos los servicios: colegios, centros de salud, metro, autobuses, grandes supermercados, cines, el Centro Cultural Matadero y Madrid Río.
Nota: Algunas fotografías han sido tratadas con inteligencia artificial únicamente para eliminar objetos del entorno. La estructura, distribución y medidas del inmueble se mantienen fieles a la realidad.
Dirección
Abrir en Google Maps-
Dirección: de Embajadores 134, Madrid 28045
-
Ciudad: Madrid
-
Código postal: 28045
-
Area: Arganzuela
-
País: España
Detalles
Actualizado en mayo 2, 2026 a 4:33 am-
ID Propiedad 3396-13144
-
Precio €550.000
-
M2 Disponibles 98.0 m2
-
Dormitorios 3
-
Baño 1
-
Año de construcción 1930
-
Tipo de propiedad Piso
-
Estado de la propiedad Comprar
Clase energética
-
Clase energética: F
- A+
- A
- B
- C
- D
- E
- | Clase energética FF
- G
- H





















