Oportunidad en Chamartín – Viviendas a reformar con proyecto aprobado
- €790.000
- €790.000
Características principales
- Local comercial
- 150.0 m2
- 1955
Descripción
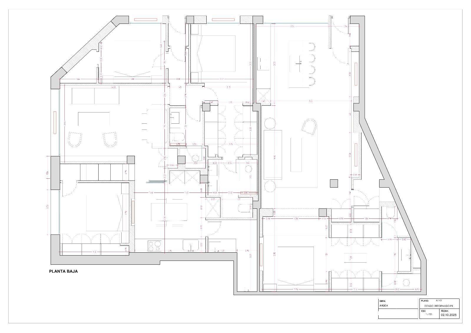
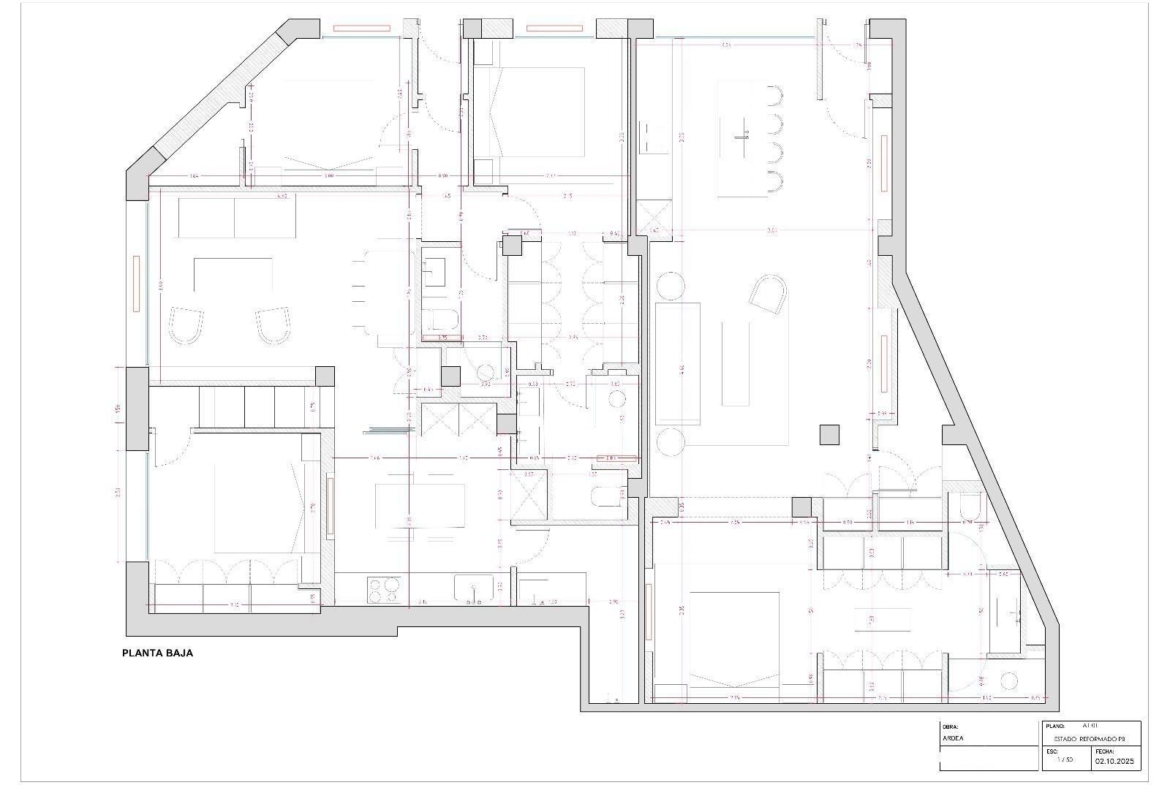
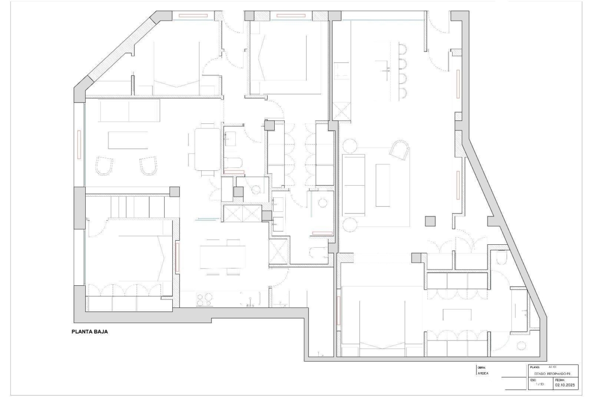
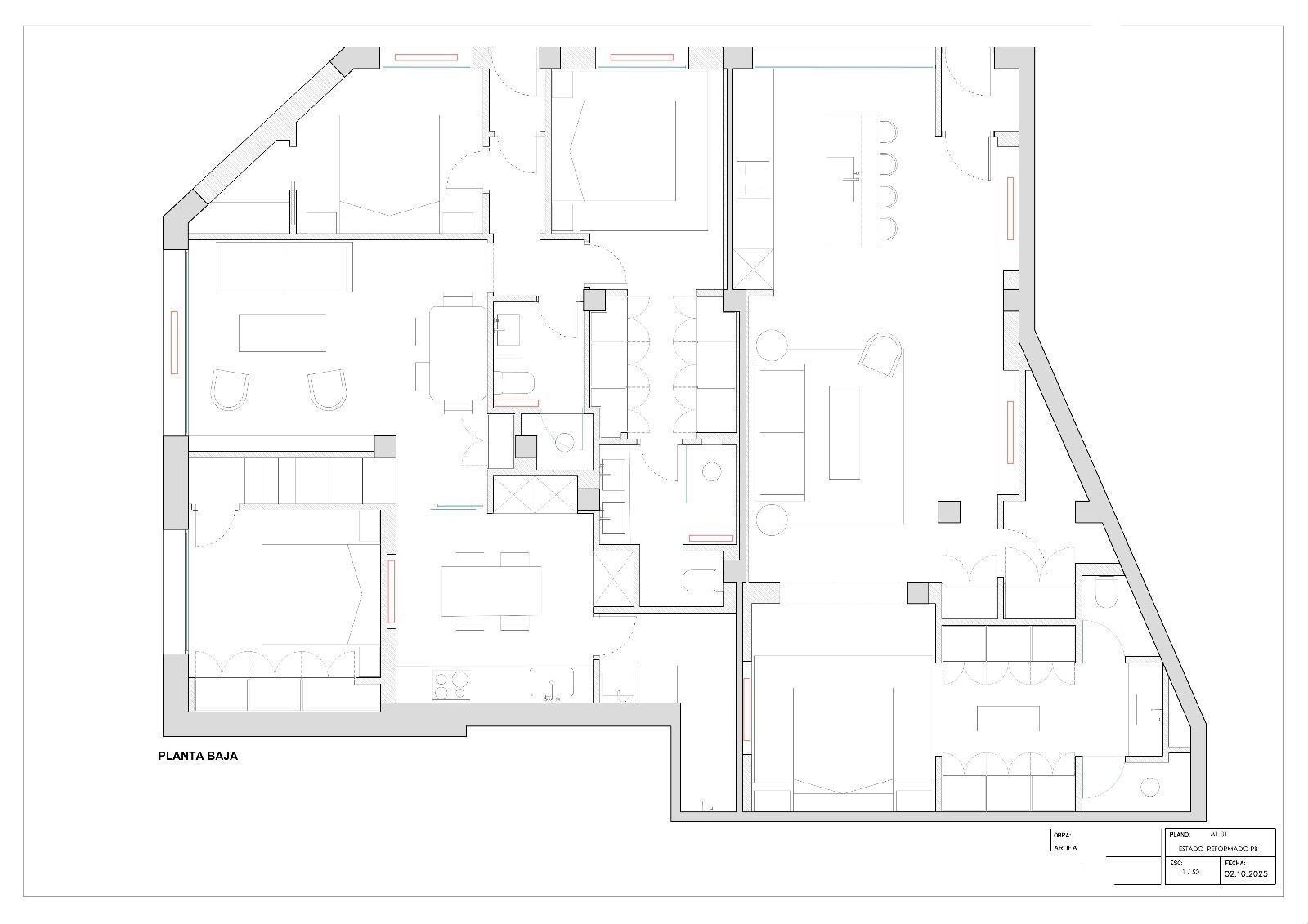
Se venden dos viviendas en planta baja, con un total de 150 m² útiles, situadas a solo 3 minutos del Parque de Berlín y de la Plaza de Cataluña, en una calle tranquila junto a Príncipe de Vergara.
Estas propiedades se encuentran actualmente en proceso de transformación, con obra de segregación en ejecución y proyecto aprobado para cambio de uso de local a vivienda.
Una excelente oportunidad para invertir o crear tu hogar a medida en una de las zonas más demandadas de Chamartín – Ciudad Jardín.
Proyecto y documentación en regla.
El cambio de uso cuenta con toda la documentación oficial y técnica aprobada, lo que garantiza seguridad y transparencia en el proceso:
• Hoja de encargo formalizada
• Documento de viabilidad urbanística
• Proyecto entregado y validado por la ECU
Esto permite al comprador iniciar la reforma de inmediato, ahorrando tiempo y costes en gestiones administrativas.
📐 Distribución prevista
• Vivienda 1: 85 m² útiles
• Vivienda 2: 65 m² útiles
Ambas unidades ofrecen gran flexibilidad de diseño interior, ideales para adaptarlas según tus necesidades: vivienda familiar, alquiler, o inversión con alto potencial de revalorización.
💡 Ventajas destacadas
• Proyecto de cambio de uso aprobado y en ejecución
• Posibilidad de personalizar la reforma
• Ubicación estratégica en Ciudad Jardín (Chamartín)
• Excelentes conexiones de metro, autobús y acceso directo a la M-30
Una oportunidad única de adquirir viviendas con proyecto aprobado y alto potencial de rentabilidad en pleno Chamartín.
Dirección
Abrir en Google Maps-
Dirección: de Pérez Ayuso
-
Ciudad: Madrid
-
Código postal: 28002
Detalles
Actualizado en mayo 2, 2026 a 4:26 am-
ID Propiedad PR99559597
-
Precio €790.000
-
M2 Disponibles 150.0 m2
-
Área terrestre 300.0 m2
-
Año de construcción 1955
-
Tipo de propiedad Local comercial
-
Estado de la propiedad Comprar
Clase energética
-
Clase energética: F
- A+
- A
- B
- C
- D
- E
- | Clase energética FF
- G
- H





