Características principales
ID Propiedad: AF0161-0045
- Local comercial
- 1
- 70.0 m2
- 1972
Descripción
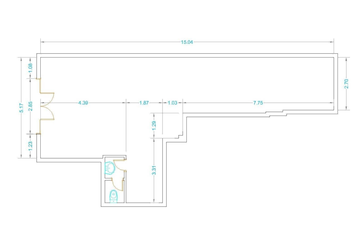
Local en la Calle Prosperidad del emblemático barrio de Salamanca. muy céntrico y con todos los servicios y trasportes que necesitas para emprender tu negocio o hacer un cambio de uso a vivienda. Es un local diáfano sin pilares en medio y con una altura libre de mas de cuatro metros con un ventanal de acceso de casi tres metros de ancho. Cuenta con un aseo con dos zonas diferenciadas y la posibilidad de ampliación.
Datos meramente informativos sin valor contractual. Impuestos y gastos de transmisión no incluidos en el precio de venta.
Dirección
Abrir en Google Maps-
Dirección: PROSPERIDAD
-
Ciudad: Santa Cruz de Tenerife
-
Código postal: 38006
Detalles
Actualizado en enero 26, 2026 a 4:04 am-
ID Propiedad AF0161-0045
-
Precio €108.000
-
M2 Disponibles 70.0 m2
-
Área terrestre 162.0 m2
-
Baño 1
-
Año de construcción 1972
-
Tipo de propiedad Local comercial
-
Estado de la propiedad Alquiler, Comprar
Clase energética
-
Clase energética: C
- A+
- A
- B
- | Clase energética CC
- D
- E
- F
- G
- H
Información de contacto
Ver listados
- MLS

















