Propiedad en venta en Alicante, San Fulgencio
- €60.000
Características principales
- Terreno
- 131.0 m2
Descripción
**Solar urbano en el centro de San Fulgencio – 131 m² con orientación levante, patio y planos de encaje incluidos. Parcela segregada de 262 m² según catastro. **
Se vende solar urbano de 131 m² ubicado en el centro de San Fulgencio, una zona tranquila y bien comunicada, con todos los servicios cercanos: comercios, colegio, centro de salud, zonas verdes y transporte. Ideal para quienes buscan construir una vivienda unifamiliar personalizada, en una ubicación privilegiada y con excelente proyección.
El solar forma parte de una parcela total de 262 m, inscrita y visible en el catastro, la cual ha sido legalmente segregada en dos parcelas independientes de 131 m² cada una. Esta oferta corresponde a una de esas parcelas.
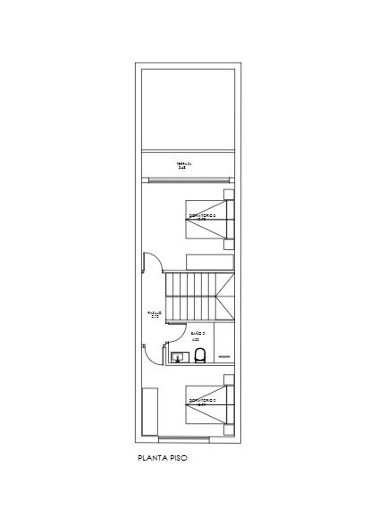
Gracias a su orientación levante, el terreno disfruta de excelente luminosidad natural desde primeras horas del día. La normativa urbanística permite la construcción de una vivienda de hasta dos alturas, con posibilidad de diseñar 2 o 3 habitaciones, varios baños, y un patio o jardín privado.
Se incluyen planos de encaje arquitectónico, que muestran posibles distribuciones y facilitan el inicio del proyecto, lo que te permitirá ahorrar tiempo y visualizar tu futura casa con mayor claridad. Además, el solar cuenta con certificado de edificabilidad en regla.
Características destacadas:
– Superficie individual: 131 m²
– Parcela original: 262 m² (según catastro, ya segregada en 2)
– Orientación: Este (levante)
– Uso: Residencial unifamiliar
– Edificabilidad: Hasta dos alturas
– Patio o jardín interior posible
– Planos de encaje incluidos
– Certificado de edificabilidad disponible
– Zona céntrica, con todos los servicios a pie
Este terreno es perfecto tanto para construir una vivienda a medida como para inversores que deseen desarrollar un proyecto con total libertad de diseño. Además, si lo deseas, existe la posibilidad de adquirir la parcela completa de 262 m².
**Una oportunidad única de empezar desde cero y crear una casa a tu estilo, con garantías urbanísticas y asesoramiento técnico disponible. **
¿Te gustaría que preparara una segunda versión enfocada a inversores o promotores?
*El precio no incluye el pago de impuestos de transmisiones patrimoniales, los gastos notariales e inscripción en el registro de la propiedad.
*El presente documento tiene carácter meramente informativo, orientativo y no vinculante por lo que no supone información contractual alguna, siendo su uso estrictamente comercial.
Dirección
Abrir en Google Maps-
Dirección: Pío XII 0, San Fulgencio 03177
-
Ciudad: San Fulgencio
-
Código postal: 03177
-
País: España
Detalles
Actualizado en abril 13, 2026 a 4:08 am-
ID Propiedad 3075-03962
-
Precio €60.000
-
M2 Disponibles 131.0 m2
-
Área terrestre 131.0 m2
-
Tipo de propiedad Terreno
-
Estado de la propiedad Comprar
Información de contacto
Ver listados
- MLS











