Propiedad en venta en Palencia, Villamuriel de Cerrato
- €295.000
- €295.000
Características principales
- Casa / Chalet
- 4
- 2
- 148.0 m2
- 1955
Descripción
REMAX PÌSUERGA ofreciendo sus servicios en Valladolid desde 1998, les presenta este fantástico chalet con un gran terreno envidiable, que ofrece muchas posibilidades.
¡Oportunidad para promotores inmobiliarios e inversores, ya que en el terreno que disponemos, existe la posibilidad de construir varias viviendas, en una localidad en pleno auge industrial!
La casa cuenta con un gran patio delantero donde disfrutar de los días primaverales.
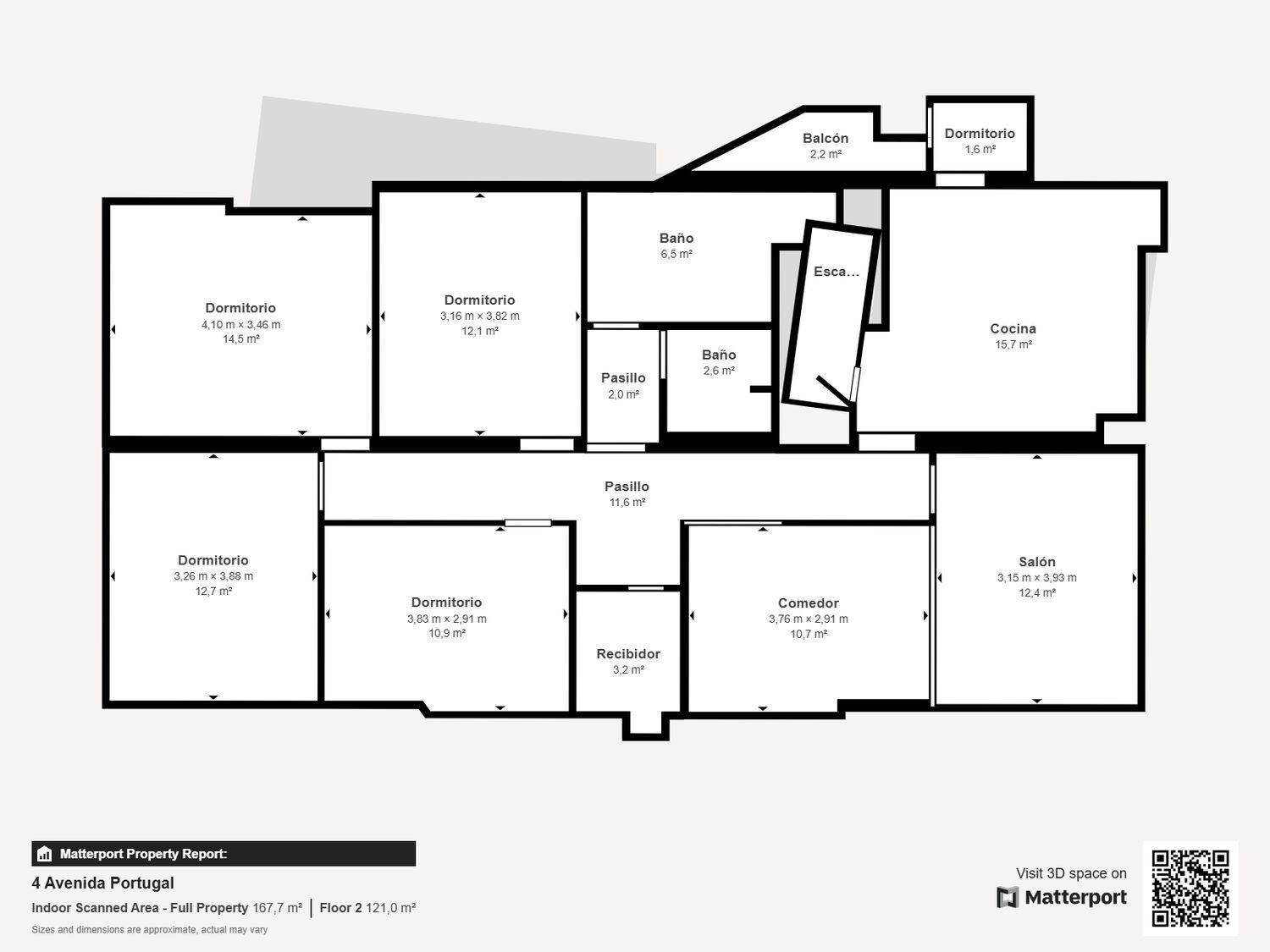
Una vez entramos en la casa, a mano izquierda tenemos 4 dormitorios de gran tamaño, dos baños que se encuentran en el centro del chalet, y a mano derecha disponemos de un gran salón comedor y la cocina totalmente equipada con salida al gran terreno de la parte posterior de la casa.
Desde la cocina también tenemos acceso a la planta semi sótano, donde tenemos una gran bodega comedor donde disfrutar de una comida en familia o cualquier celebración.
¡La casa cuenta con calefacción de gas natural con radiadores en todas sus estancias.
Villamuriel de Cerrato es una localidad de gran belleza, con una actividad industrial en crecimiento continuo y que nos hace disfrutar de la tranquilidad de un pueblo, pero con toda clase de servicios, como colegios, instituto, centros deportivos, farmacias, centro de salud.. . etc.
No pierda la oportunidad de vivir en una localidad rodeada de naturaleza y a la vez con los servicios que nos ofrece una gran ciudad.
financiación 100% disponible, consúltenos sin compromiso.
Dirección
Abrir en Google Maps-
Ciudad: Villamuriel de Cerrato
-
País: España
Detalles
Actualizado en agosto 7, 2025 a 3:14 am-
ID Propiedad 3025-15092
-
Precio €295.000
-
M2 Disponibles 148.0 m2
-
Área terrestre 480.0 m2
-
Dormitorios 4
-
Baños 2
-
Año de construcción 1955
-
Tipo de propiedad Casa / Chalet
-
Estado de la propiedad Comprar
Información de contacto
Ver listados
- MLS




















































