Piso luminoso en Sautxi – Eibar con todo lo que necesitas — ¡entra a vivir!
- €270.000
- €270.000
Características principales
- Piso
- 3
- 2
- 97.0 m2
- 2004
Descripción
🏡 Vivienda en excelente estado, exterior y bien comunicada
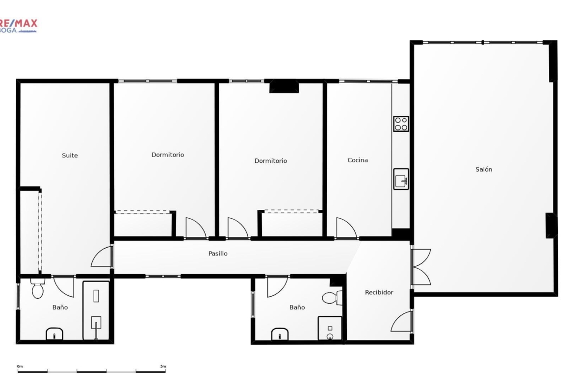
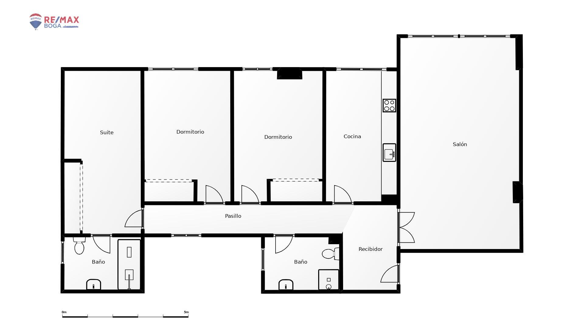
Se vende vivienda de 97 m² construidos y 85 m² útiles, exterior y en muy buen estado, ubicada en la segunda planta de edificio con ascensor.
Se encuentra en una zona tranquila y muy bien comunicada, con acceso rápido desde la autopista y a escasos minutos a pie del centro mediante ascensor urbano.
🛋️ Distribución de la vivienda principal
– Amplio salón comedor con grandes ventanales y vistas despejadas a zonas verdes.
– Cocina independiente totalmente equipada.
– 3 dormitorios exteriores con armarios empotrados y abundante luz natural.
– 2 baños completos, uno de ellos integrado en la habitación principal tipo suite.
– Pasillo ancho que conecta todas las estancias con fluidez.
🚗 Incluye además
– 2 plazas de garaje en el edificio.
– Trastero-despensa de 2,33 m² junto a la vivienda, muy funcional para almacenaje diario.
– Trastero-Camarote de 30 m² en la planta ático, adaptado como habitación adicional con baño y ducha propios, ideal como zona de invitados, estudio o espacio independiente.
🏢 Características del edificio
El edificio cuenta con portal bien conservado, ascensor y zonas comunes cuidadas.
La comunidad no tiene derramas pendientes.
🌳 El entorno
– Ubicado en una zona residencial muy valorada por su tranquilidad, vistas al entorno natural y servicios cercanos.
– La zona cuenta con un amplio espacio recreativo con zona infantil, pista deportiva y skatepark, ideal para familias.
– A solo unos minutos a pie se accede al centro urbano de Eibar mediante ascensor público, lo que garantiza comodidad sin renunciar a un entorno natural.
📢 ¿Buscas una vivienda con espacio, almacenamiento extra, buena luz y perfectamente comunicada?
✨ ¡Esta puede ser tu próxima casa!
📞 Contáctame y organizamos una visita.
📌 Gastos no incluidos: Impuestos, honorarios de notaría y costes de registro de la propiedad.
💰 Estimación orientativa : Aproximadamente 10.800€ , sujeto a variaciones según el tipo de comprador y uso de la vivienda. Este importe puede diferir en función de factores como la consideración de vivienda habitual, segunda residencia o la edad del comprador.
🔹 El mobiliario no está incluido en el precio, salvo indicación expresa.
Dirección
Abrir en Google Maps-
Dirección: SARATSUEGI
-
Ciudad: Eibar
-
Código postal: 20600
Detalles
Actualizado en abril 16, 2026 a 4:11 am-
ID Propiedad 3576-00864
-
Precio €270.000
-
M2 Disponibles 97.0 m2
-
Área terrestre 97.0 m2
-
Dormitorios 3
-
Baños 2
-
Año de construcción 2004
-
Tipo de propiedad Piso
-
Estado de la propiedad Comprar
Clase energética
-
Clase energética: E
- A+
- A
- B
- C
- D
- | Clase energética EE
- F
- G
- H
Información de contacto
Ver listados
- MLS






































































