Oficina en Arenales
- €850.000
Características principales
- Oficina
- 815.0 m2
- 1979
Descripción
¡OPORTUNIDAD INVERSORES¡ ¡APTO PARA LA RIC!
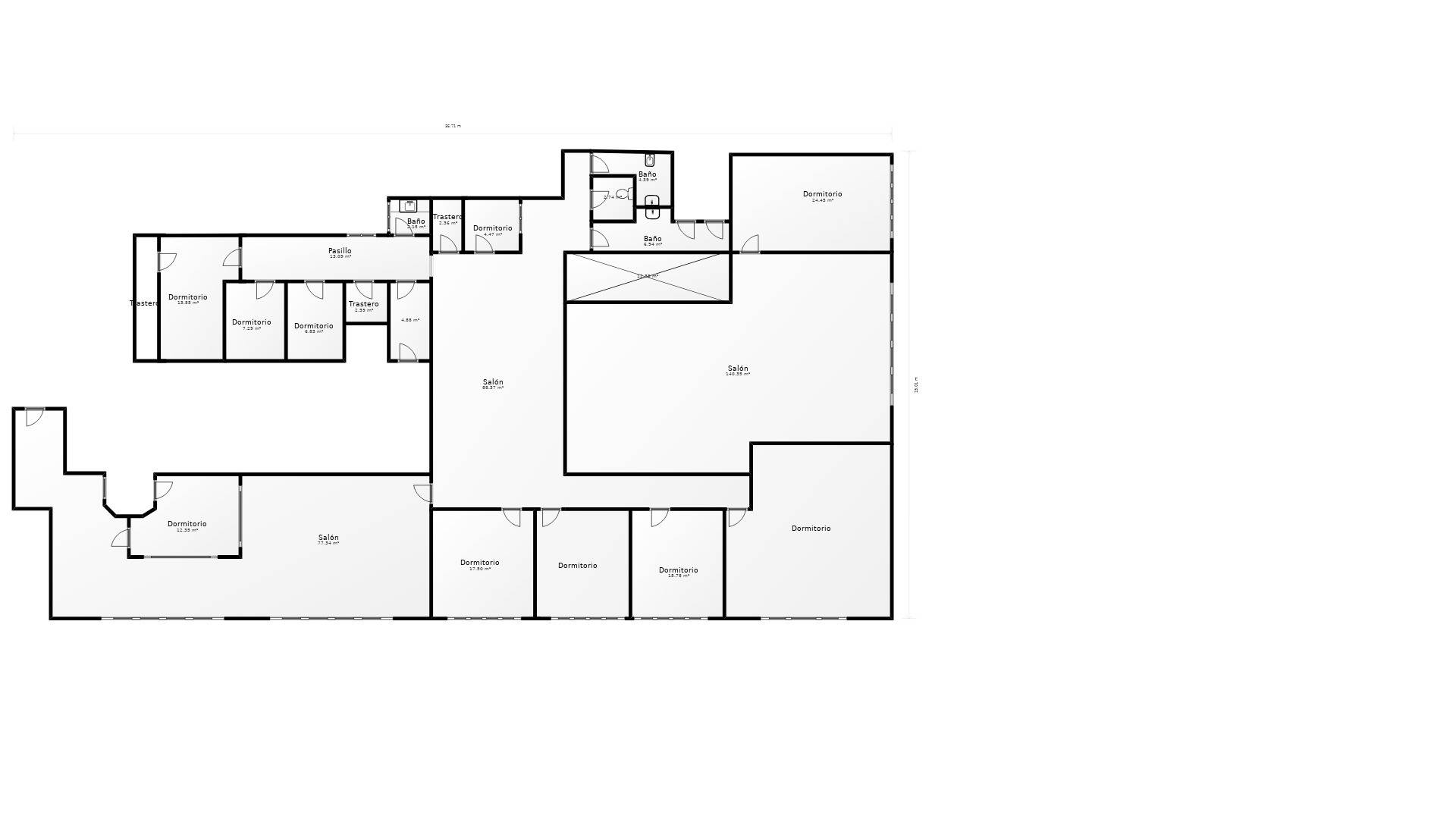
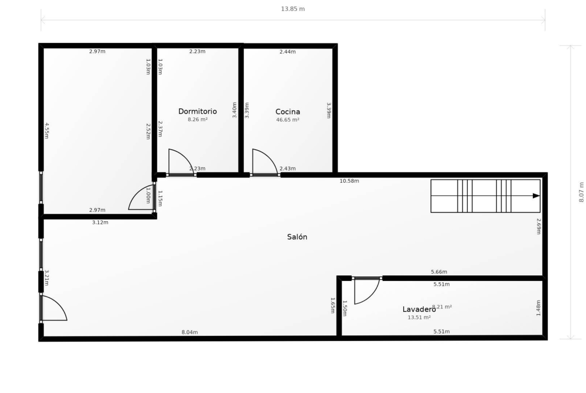
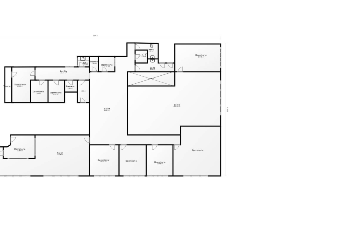
A la venta magnifica oficina de 815 m2, completamente exterior, con acceso directo a pie de calle, ubicada en la calle Senador Castillo Olivares (edificio Electro Radio), en el barrio de Arenales.
La oficina es muy polivalente, cuenta con división de salas y áreas de trabajo a través de mamparas de calidad con aislamiento acústico. Existe la posibilidad de distribuir y separar los espacios sin necesidad de obra, adecuando la superficie según las necesidades.
Actualmente dispone de recepción, múltiples despachos, aulas, salas de reuniones, de limpieza, instalaciones, etc. Además cuenta con una amplia zona de baños diferenciados y también para personas con discapacidad.
La ubicación de la oficina es inmejorable ya que se encuentra en el Barrio de Arenales, en el centro neurálgico de la ciudad, al lado de los institutos, de la facultad y campus universitario de Tomás Morales, del Obelisco y muy cerca de todas las Administraciones Públicas. Además se encuentra muy cerca del Parque San Telmo, de la zona comercial de Triana y de la calle León y Castillo.
Si necesitan ampliar información, estaremos encantados en atenderles.
Información: En el precio de venta no se incluyen gastos de notaría, registro e impuestos derivados de la misma. Los datos expuestos son meramente orientativos y se encuentran sujetos a errores u omisiones involuntarias.
Dirección
Abrir en Google Maps-
Ciudad: Las Palmas de Gran Canaria
Detalles
Actualizado en enero 26, 2026 a 3:50 am-
ID Propiedad SC0033-3561
-
Precio €850.000
-
M2 Disponibles 815.0 m2
-
Área terrestre 815.0 m2
-
Año de construcción 1979
-
Tipo de propiedad Oficina
-
Estado de la propiedad Comprar
Clase energética
-
Clase energética: G
- A+
- A
- B
- C
- D
- E
- F
- | Clase energética GG
- H
Información de contacto
Ver listados
- MLS






























